Skills & Experience
  • 2022 | MAKE Architects Part 1 Architectural Assistant
  • 2022 | Genova BeDesign Week 2022 - Co-Designer for 'Cumulo' Installation, Genova, Italy
  • 2021 | Netflix's The Crown - Assistant Buyer within the Art Department
  • 2019-21 | CAUKIN Studio Architectural Volunteer/Assistant to Naweni Kindergatern Build, Fiji
  • 2018 | Central Saint Martin's, UAL - Foundation Diploma Level 4 Distinction
Project description

This scheme is situated at the junction of key civic routes between the post-war housing estates shaping the Leith neighbourhood. A carpark, marked by a brick perimeter, the scheme acts to permeate this boundary creating a more inclusive and unifying civic space.

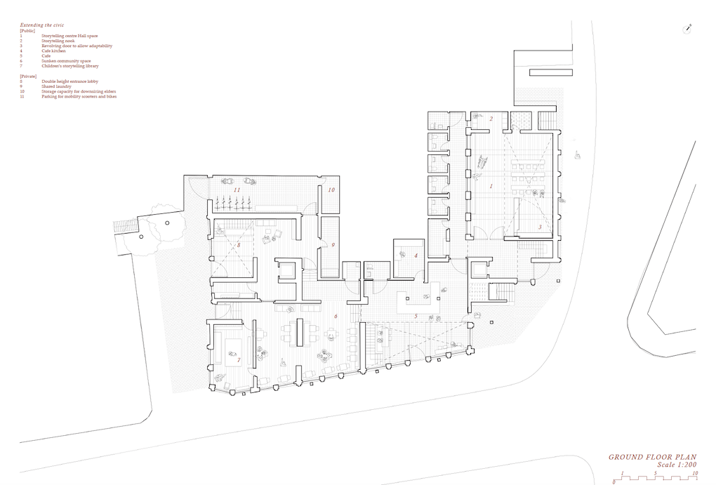
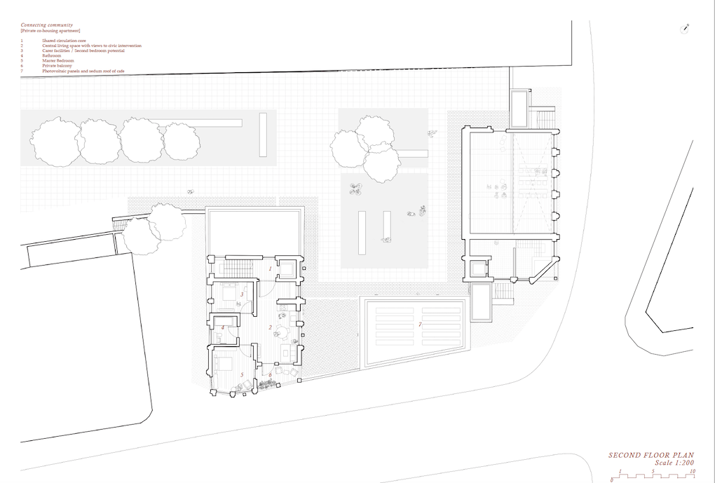
Rooted in the rich history of its context, the proposal intends to bring people together to reflect on the past, learning from shared experiences and telling stories to better web isolated individuals together into a collective narrative. The series of buildings each span the spectrum of public to private, reflected in materiality and structure to honour those inhabiting the space and threading these themes together to create a collective storytelling centre for all. The co-housing unit for the elderly is situated above the children’s library of the community storytelling centre, to further connect the old and the new, something crucial when tackling the challenges of the future - social and environmental. The scheme combines a larger community hall space to house events and civic functions, bringing life and character to the site and shining light on the power of storytelling to feel a deeper rooted connection between people and place.

Filling The Chapters | Matter

Considering the materiality of each layer, the choices offered opportunities and challenges regarding internal environments, external aesthetics and tectonic strategy. Material differentiation allowed programmatic differences to be expressed, as well as the idea of the ‘collective’ to be presented for the scheme as a whole. This in turn would allow for a definition of the new civic intervention against the existing urban grain, promoting a new relationship between people and place.

Exploded axonometric showing tectonic layers
Construction sequence of hemp panels
The reuse of the brick
Framing the Plot | Structure

The structure of this proposal is informed by a range of precedents, to facilitate an investigation aligning with the central tectonic themes of misalignment, scale, and materiality. Reacting to the rhythms of the site, rooted in history and contemporary context, the scheme situates itself within the greater Edinburgh context. Its clear character help to bridge connections between the existing site architecture, to create a new civic intervention.

Considering how the structure can evolve over time to accommodate any future programme, each layer of the structure is constructed in such a way to be modular and able to be redesigned and slotted into the permanent frame. Designed with these structural layers in mind, each has the potential to change at differing time frames; whilst the concrete and brick ‘colonnade’ is designed to stand the test of time and be re-inhabited for generations to come.

Technical Section
Interior viewpoints within the storytelling scheme
The power of the approach - situating the scheme within the urban realm
Section describing programmatic function and level of civic relationship
Folded elevation describing the 'new' perimeter and its civic presence
Rich in Urban Narrative - Leith, Edinburgh
Rooted in history - the post-war housing affecting community ties
The existing perimeter defining the relationship between people and place on the site
Materiality navigating function of spaces
The ruination over time - a site of civic reaction
Related topics
Student list
open list
close list