Project description

DaceWorks is more than just a dance centre. It is a visionary project, home to the holistic development of professional and semi-professional dancers. DanceWorks supports the dancer’s journey, empowering them to reach their full potential, from collaborative rehearsals to health, nutrition and injury management, through to performance. 

DanceWorks, at its core, is community focused, providing much needed rehearsal and conditioning space within the city whilst generating a stronger, more inclusive sense of creativity and collaboration within the industry. Its innovative approach aims to elevate the status of dance in society by showcasing its profound impact on health and well-being. Recognising the challenges facing professional dance and the lack of funding and appreciation it receives, its mission is to inject higher value and recognition into the whole community and industry. 23 Union Street’s transformation into a vibrant creative hub symbolises the DanceWorks mission to create a cultural shift and empower dancers to reach their full potential.

Rendered Section
Rendered Section
Site History

23 Union Street

Original use: A public wash house 

Current occupant: Santu Coffe 

Ownership: Edinburgh City Council 

Architect: James Tweedie

Structural engineer: Blyth & Blyth

Origin: 1933. Category C listed

Size: 1,110 msq gross internal area

Style: Georgian style 

Historic Images of 23 Union Street
Historic Images of 23 Union Street
Design Proposal

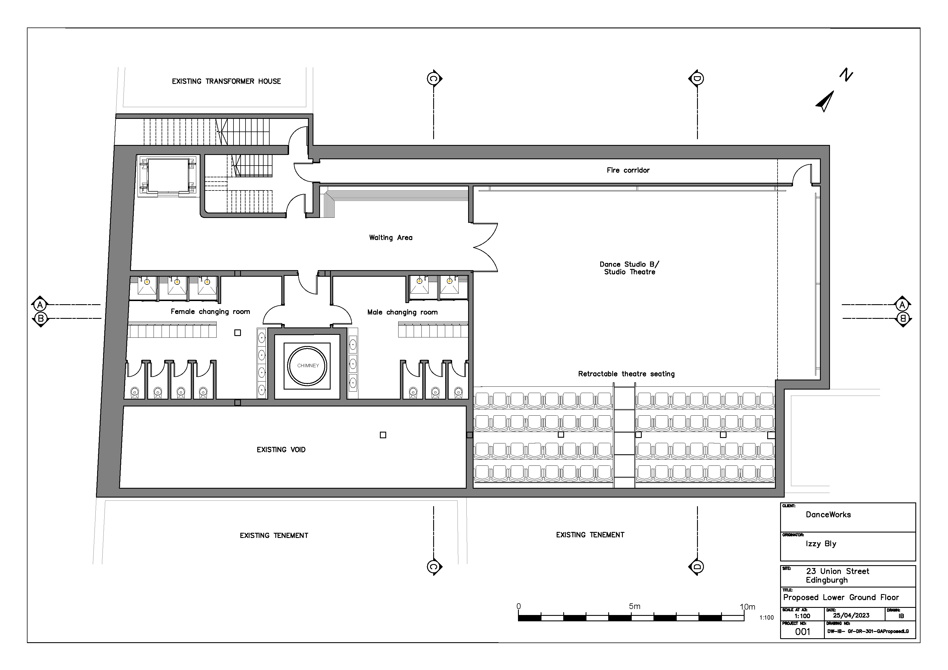
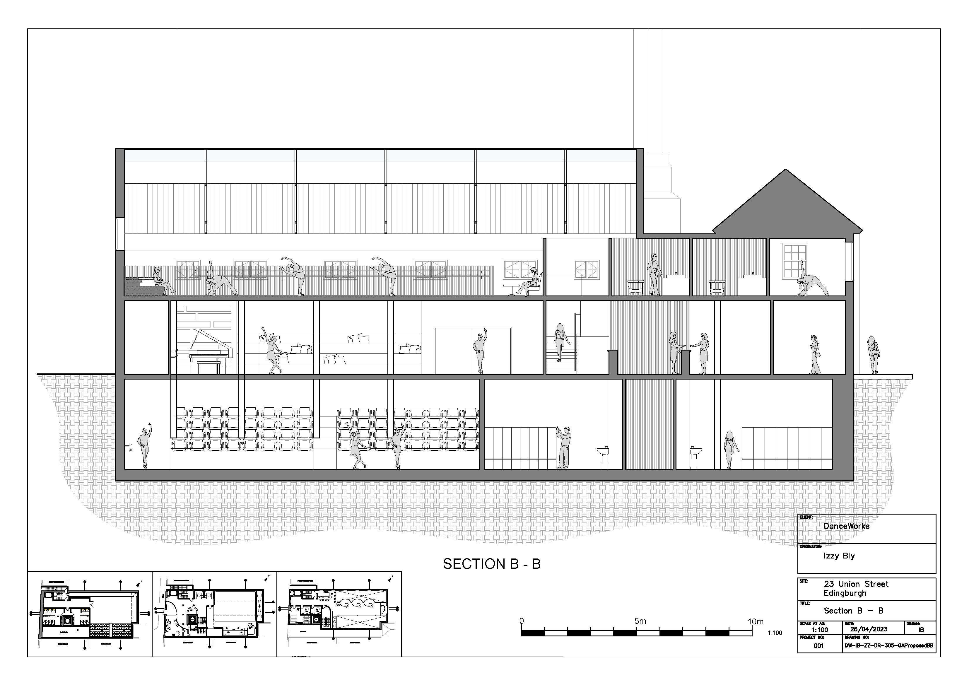
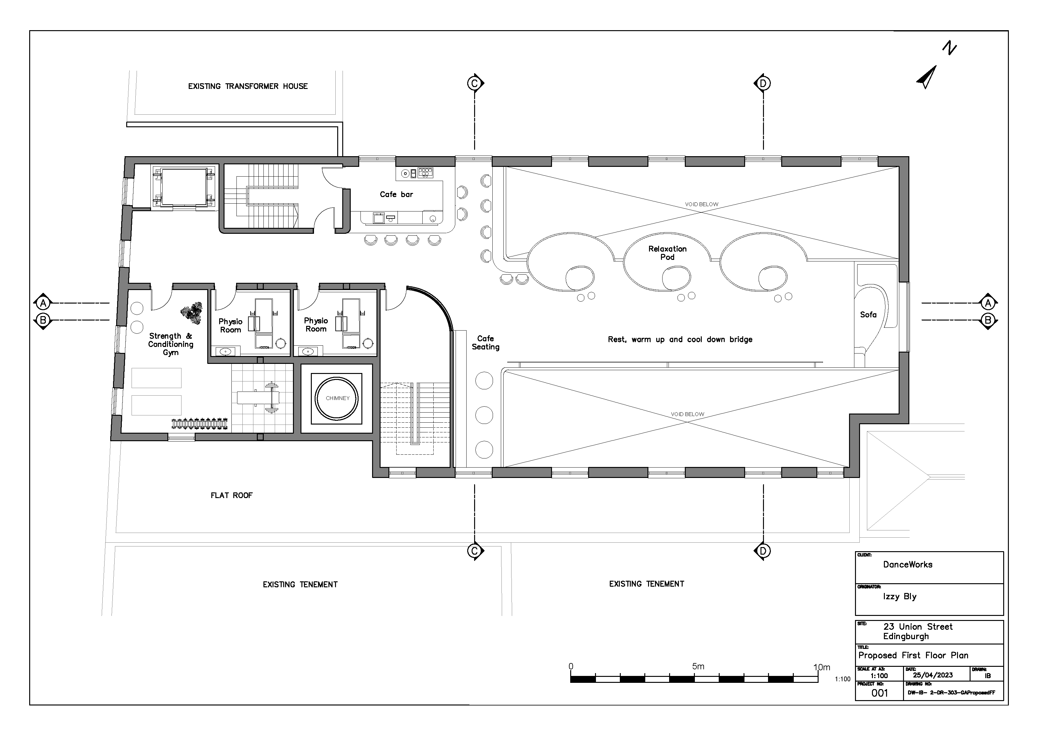
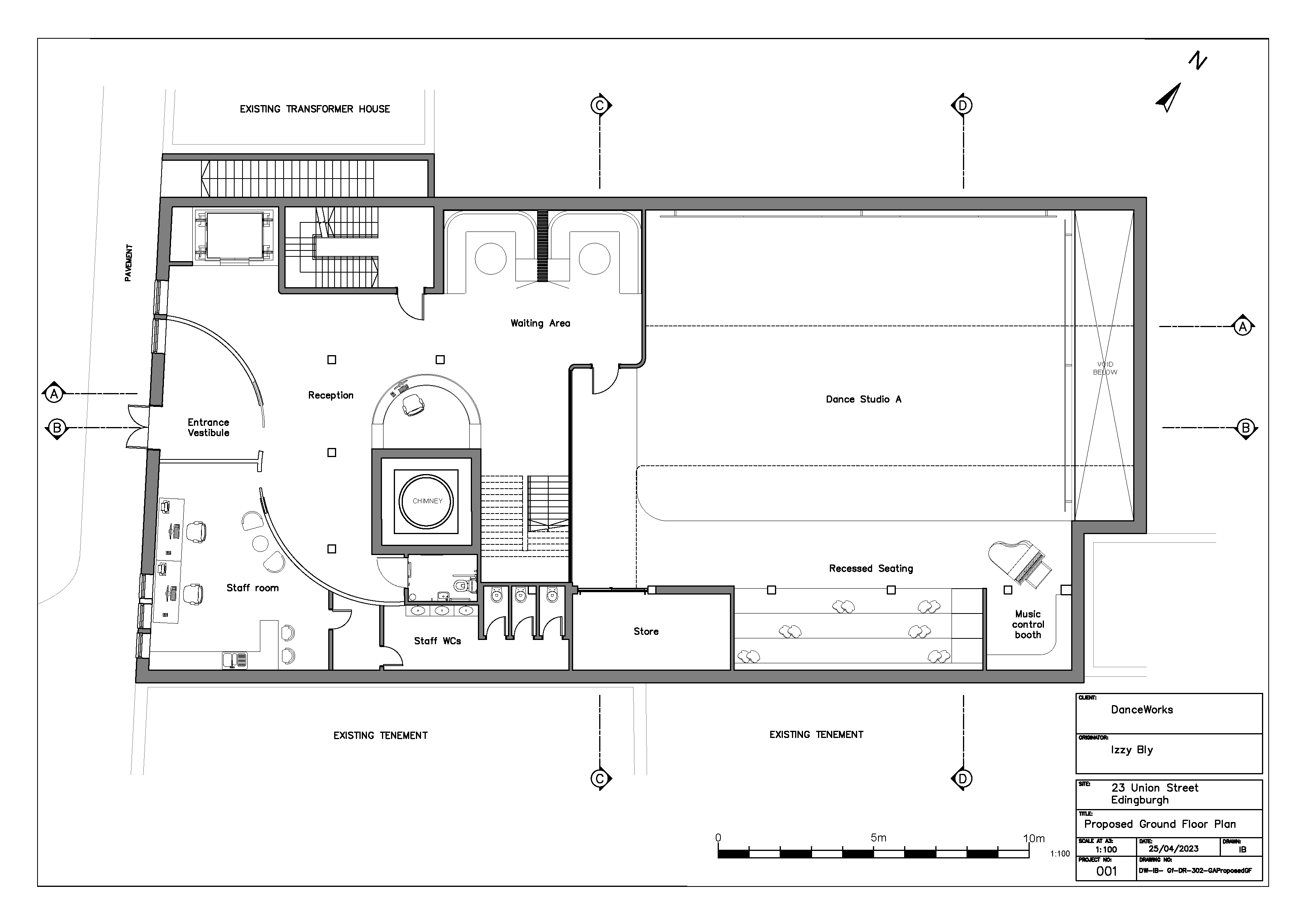
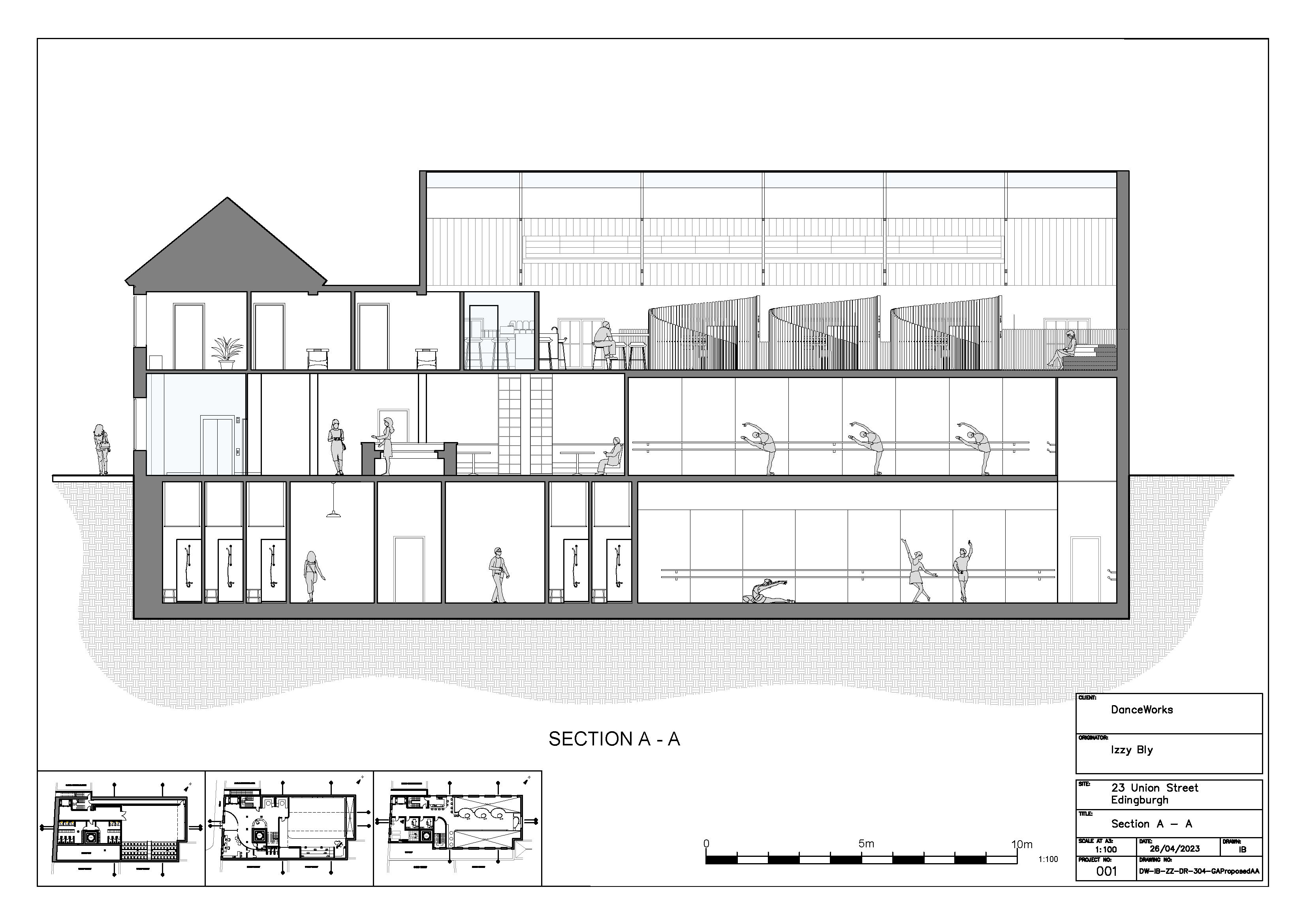
The spatial arrangement promotes a cyclical movement where dancers begin on the lower ground, move to Studio A or B for practice or performance, and then head to the first floor for rest and wellness activities. The building is arranged with performance on the lower ground, practice on the ground floor, and rest and wellness on the first floor.

Materials

DanceWorks’ design concept features an elegant interplay between light and dark, with tasteful accents of blue and burgundy to evoke a sense of theatrical sophistication. These colours are reminiscent of the plush, luxurious curtains that adorn the grandest performance halls and theatres, creating a feeling of opulence and relaxation. Additional themes of movement and flow engender restorative calmness. The design features blue accents, symbolic of a relaxing and restorative atmosphere. This is complimented by the natural textures, browns and tans; inspired by Japanese interiors to further emphasise a calming atmosphere that promotes the health and well-being of dancers. Materials within the scheme include: Blue frosted glass, mirror, velvet curtains, and timber slats.

Materials
Materials
Inspiration: Movement and Musicality

Inspired by the circular movements of the dancer. The curved shapes in my design were inspired by the musical bass clef, creating a link to movement and musicality.

Musical inspiration
Musical inspiration
Drawing of Dancers Movement
Drawing of Dancers Movement
Pod Concept Drawing
Pods Concept Drawing
Pods in plan & section
Pods in plan & section
Pod Detail 1
Pod Detail 1
Pod Detail 3
Pod Detail 3
Pods Elevation Drawing
Pods Elevation Drawing
Pod Elevations
Pod Elevations
Pod Detail 2
Pod Detail 2
Pod Detail 4
Pod Detail 4
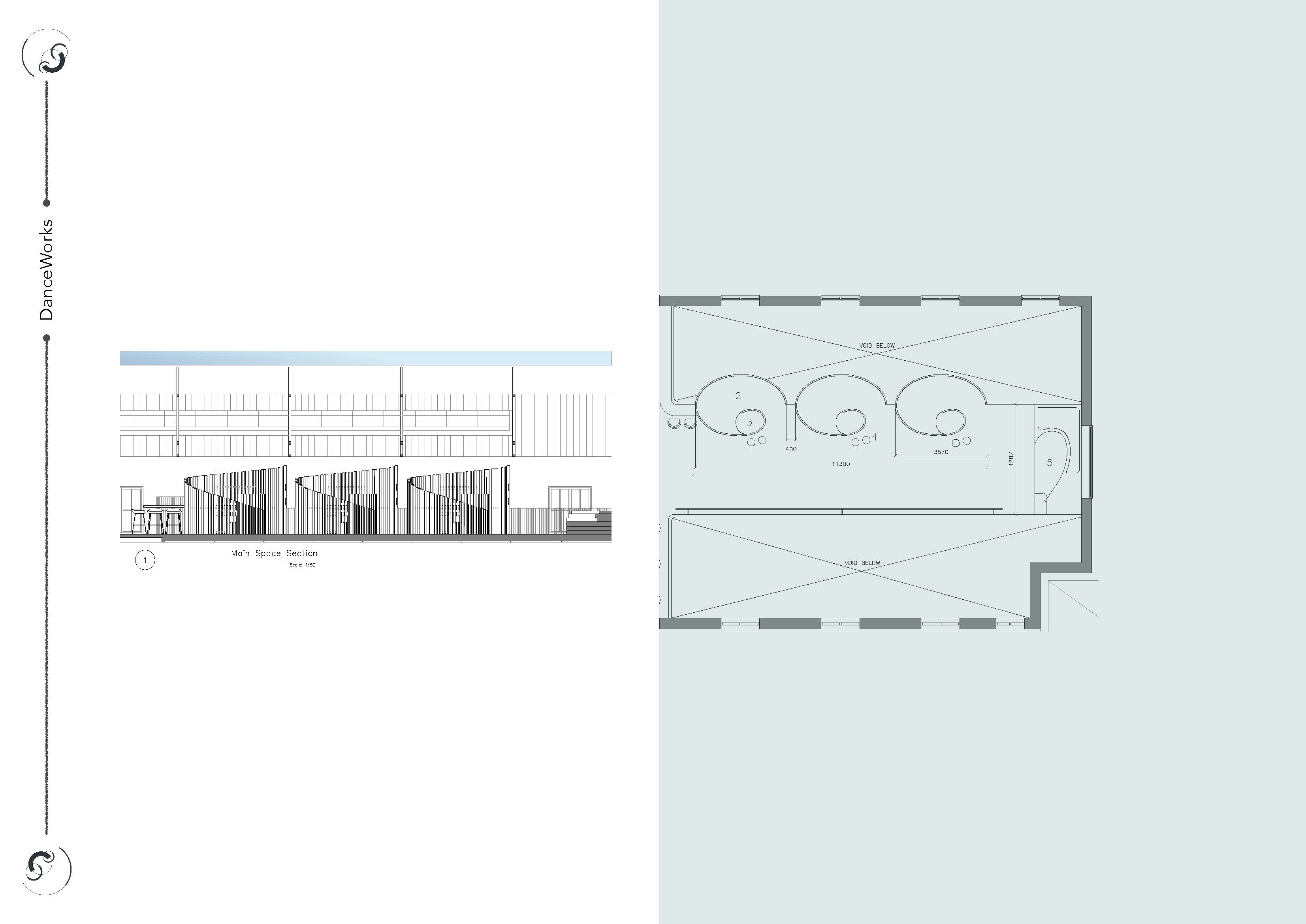
Design Detail: The Rest Pod

A key feature of this project is the detailing of three ‘relaxation pods’ cantilevered off the bridge's main structure, which stretches across the double-height space below. Building on the project’s innovative holistic approach, these pods aim to promote rest and recovery time for dancers before and after rehearsal and performance. 

The trio of Pods in my main space will incorporate; comfortable bespoke integrated seating, cocooned within the curved timber structure, and warm ambient lighting from uplighting in-between the slats to create a meditative glow. By prioritising the comfort and well-being of dancers, this pod will allow for private stretching and rest whilst still being connected to the vibrant atmosphere.

Exploded Axonometric
Exploded Axonometric | Rest Pod for DanceWorks
Proposed Lighting Strategy

The lighting in the space should be adjustable, allowing dancers to customise the level of brightness to suit their needs. From soft, warm lighting to brighter and more productive lighting, suiting both rehearsal and relaxation time for dancers.

Proposed Lighting Strategy
23 Union Street Rendered Front Elevation
23 Union Street Rendered Front Elevation